Skip To Content

5111 Esperanza Terrace Drive

Richmond, TX 77469
  • $209,990
  • STATUS: Active
  • ON SITE: 209 Days
  • MLS #: 39485352
Open House
UPDATED: 61 min ago
$209,990
  • 3
    BEDS
  • N/A
    ACRES
  • 2
    BATHS
  • 0
    1/2 BATHS
  • 1,411
    SQFT
  • $149
    $/SQFT
Neighborhood:
Type:
Single-Family Home
Built:
2025
County:

School Information

Elementary School:
High School:
School District:

Description

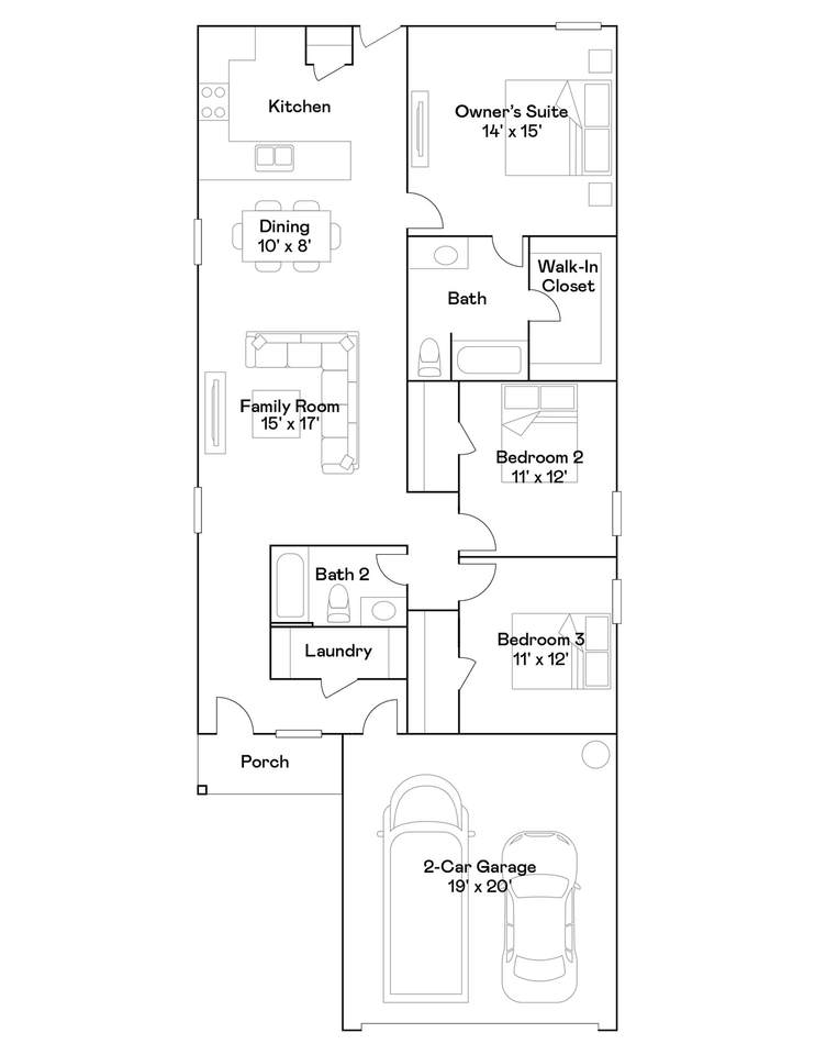
NEW! Lennar Cottage Collection "Idlewood" Plan with Elevation "C" in Esperanza! This single-level home showcases a spacious open floorplan shared between the kitchen, dining area and family room for easy entertaining, along with access to an outdoor space. An owner’s suite enjoys a private location in a rear corner of the home, complemented by an en-suite bathroom and walk-in closet. There are two secondary bedrooms at the front of the home, ideal for household members and overnight guests.

Monthly Payment Calculator



© 2026 Houston Realtors Information Service, Inc. All rights reserved. All information provided is deemed reliable but is not guaranteed and should be independently verified. IDX information is provided exclusively for consumers' personal, non-commercial use and may not be used for any purpose other than to identify prospective properties consumers may be interested in purchasing. Data last updated 2026-02-11T16:21:07.94.
www.findhomeshouston.com/homes/165944263
Print Image

5111 Esperanza Terrace Drive Richmond, TX 77469

  • Price: $209,990
  • Status: Active
  • On Site: 209 Days
  • Updated: 61 min ago
  • MLS #: 39485352
3
Beds
2
Baths
0
½ Baths
N/A
Acres
1,411
SQFT
$149
$/SQFT
2025
Built
Neighborhood:
Esperanza
County:
Fort Bend
Area:
30 - Ft. Bend Southwest
Elementary School:
Needville Elementary School
Middle School:
Needville Junior High School
High School:
Needville High School
School District:
Needville
Property Description
NEW! Lennar Cottage Collection "Idlewood" Plan with Elevation "C" in Esperanza! This single-level home showcases a spacious open floorplan shared between the kitchen, dining area and family room for easy entertaining, along with access to an outdoor space. An owner’s suite enjoys a private location in a rear corner of the home, complemented by an en-suite bathroom and walk-in closet. There are two secondary bedrooms at the front of the home, ideal for household members and overnight guests.
Exterior Features

Architectural Style Traditional Attached Garage YN Yes Foundation Details Slab Garage YN Yes Parking Features Attached Garage Pool Private YN No Roof Composition

Interior Features

Cooling Central Air Electric Cooling YN Yes Heating Central Gas Heating YN Yes Levels One Rooms Bedroom (First Level) Bedroom (First Level) Primary Bedroom (First Level) Dining Room (First Level) Family Room (First Level) Rooms Total 5

Property Features

Association Fee 1400 Association Fee Frequency Annually Association Fee Includes Other Association Name ACMI Management Association Phone 281-251-2292 Association YN Yes Builder Name Lennar Building Area Total 1411 Construction Materials Brick Cement Siding Disclosures Other Lease Considered YN No List AOR Houston Association of Realtors Lot Features Subdivision New Construction YN Yes Property Condition Under Construction Property Sub Type Detached Public Survey Section 1 Tax Legal Description SEC 0001 BLK 005 LOT 025 Tax Year 2024 Water Source Public

Listing information © 2026 Houston Association of REALTORS® MLS.
Listing courtesy of Lennar Homes Village Builders, LLC: .



© 2026 Houston Realtors Information Service, Inc. All rights reserved. All information provided is deemed reliable but is not guaranteed and should be independently verified. IDX information is provided exclusively for consumers' personal, non-commercial use and may not be used for any purpose other than to identify prospective properties consumers may be interested in purchasing. Data last updated 2026-02-11T16:21:07.94.
 
https://bt-photos.global.ssl.fastly.net/harmls/1280_boomver_1_39485352-2.jpg https://bt-photos.global.ssl.fastly.net/harmls/1280_boomver_1_39485352-2.jpg https://bt-photos.global.ssl.fastly.net/harmls/1280_boomver_1_39485352-2.jpg
Logo
Connect Realty
2170 Buckthorne Pl. #100
The Woodlands TX, 77380